
Als einer der Klassiker unter den Gartenhäusern zeichnet sich ein Blockbohlenhaus durch seine sehr robuste Bauweise, gepaart mit einer besonderen, natürlichen Ästhetik, aus. Dabei orientiert sich diese Bauweise an der traditionellen Blockhütte. Mit seinem traditionellen, unaufdringlichen Design fügt es sich so harmonisch in jede Umgebung ein.
Für mehr Raum und vielfältige Nutzungsmöglichkeiten sorgt dieses Gartenhaus mit Anbaudach. Das großzügig geschnittene Anbaudach ermöglicht es, den Gartenalltag in vollen Zügen im Freien genießen zu können – geschützt vor Sonne, Wind und Regen. Der Platz unter dem Dach kann als gemütliche Terrasse zum Sitzen, Spielen oder Werkeln bei jedem Wetter genutzt werden. Alternativ eignet es sich auch als optimaler Unterstellplatz für zahlreiche Gartengeräte.
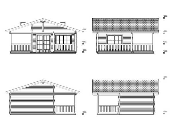
Die Grundfläche des Gartenhauses beträgt 16,27 m². Das Sockelmaß (Haus ohne Anbau) liegt bei 274,4 x 392,4 cm (B x T). Eine optimale Raumnutzung wird dank einer Firsthöhe von 236 cm gewährt.
Orientiere dich für die Erstellung des Fundaments am Grundriss bzw. an der mitgelieferten Montageanleitung! Produktblätter, Montageanleitungen und weitere wichtige Hinweise findest du unter der Produkttabelle.
Die Wände des Blockbohlenhauses setzen sich aus vorgefertigten Holzbohlen zusammen, die dank einer Nut- und Feder-Verbindung ohne größere Anstrengungen aufeinandergesteckt werden können. Damit ist ein einfacher und schneller Auf- und Abbau garantiert. An der Kopfseite des Gartenhauses sorgt die charakteristische Verkämmung (spezielle Einkerbungen im Holz) nicht nur für eine einzigartige Optik, sondern hält das ganze Konstrukt auch zusammen und macht es absolut wind- und wetterfest.
Mit einer Wandstärke von 28 mm ist das robuste Gartenhaus der perfekte Aufenthaltsort im Sommer. Aufgrund wärmedämmender Eigenschaften des hochwertigen Holzes ist es im Inneren des Gartenhauses während der prallen Sommerhitze 3–5 Grad kühler und in den kälteren Abendstunden 3–5 Grad wärmer als draußen. So hast du im heißen Sommer immer ein schattiges Plätzchen. Dank der soliden Wandstärke verwittert das Holz nicht so schnell und bleibt langlebig sowie stabil.
Das hochwertig gearbeitete Gartenhaus zeichnet sich durch sein ausgesuchtes erstklassiges Fichtenholz aus. Fichte ist besonders langlebig und robust, was für die notwendige Stabilität sorgt. Außerdem überzeugt die Holzart mit geringem Gewicht, einer leichten Verarbeitung und hoher Elastizität.
Das naturbelassene Holz sorgt für ein natürliches und zeitloses Aussehen. Außerdem ermöglicht dir das unbehandelte Holz, das Äußere des Gartenhauses ganz nach deinen eigenen Wünschen zu gestalten.
Bitte beachte, dass das Gartenhaus spätestens direkt nach der Montage sowohl von innen als auch von außen mit einem Holzschutzmittel zu bearbeiten ist. Bei der Auswahl von Holzschutzmitteln empfehlen wir, dich im Fachhandel beraten zu lassen oder der Empfehlung des Herstellers zu folgen, die du in der beiliegenden Montageanleitung findest. Nach dem Erstanstrich sollte die Behandlung mindestens alle zwei Jahre wiederholt werden, um das Holz dauerhaft vor Verformung, Verwitterung und Schädlingsbefall zu schützen.
Das Flachdach überzeugt mit seiner Schlichtheit und klaren Linienführung. Die geringe Neigung dieser Dachform wirft wenig Schatten und behindert die Sicht kaum.
Folgende Fenster werden mitgeliefert: 1 Fenster.
Folgende Türen sind im Lieferumfang enthalten: Einzeltür + Doppeltür; Echtglas
Das Gartenhaus wird ohne Fußboden geliefert. Einen passenden Fußboden (achte auf die Serienbezeichnung) findest du in unserem Zubehörsortiment.
Preiswerte Markenprodukte rund um Holz und darüber hinaus: WOODTEX bietet erstklassige Qualität bei Garten-/Gerätehäusern, Sichtschutzzäunen, Terrassendielen und Gewächshäusern. Seit vielen Jahren produziert der Hersteller alles, was den Outdoorbereich zum angenehmen Aufenthaltsort werden lässt. Innovative Materialien, hochwertiges Holz und günstige Preise – dafür steht WOODTEX. Kurzum: Viel Garten für wenig Geld.
Jetzt Produkt bewerten