
Dieses klassische Gartenhaus überzeugt mit seiner Praktikabilität. Dank seines traditionsbewussten, unaufdringlichen Designs fügt es sich in jede Umgebung perfekt ein und strahlt dabei Gemütlichkeit und Heimeligkeit aus. Ob als Unterstellplatz für Gartengeräte, Grill, Fahrrad oder als Hobbyraum – das klassische Gartenhaus bietet Raum für deine individuellen Bedürfnisse.
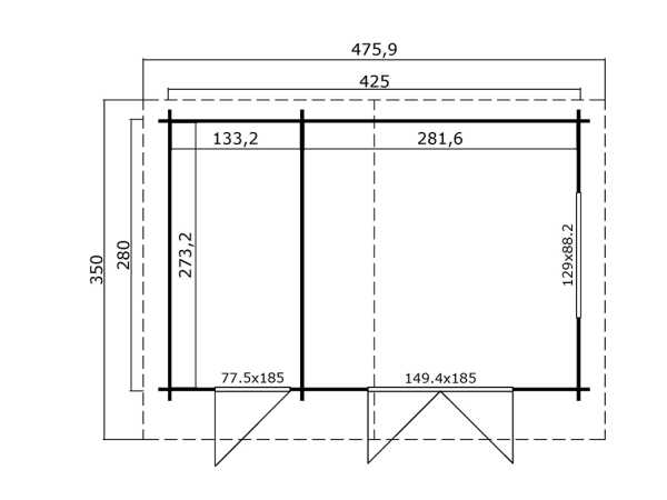
Die Grundfläche des Gartenhauses beträgt 11,9 m² mit einem Sockelmaß von 425 x 280 cm (B x T). Eine optimale Raumnutzung wird dank einer Firsthöhe von 256,5 cm gewährt.
Bei der Erstellung des Fundaments orientiere dich an dem Grundriss bzw. an der mitgelieferten Montageanleitung! Produktblätter, Montageanleitungen und weitere wichtige Hinweise findest du unter der Produkttabelle.
Als der Klassiker unter den Gartenhäusern verfügt ein Blockbohlenhaus über eine sehr robuste Bauweise, gepaart mit einer besonderen, natürlichen Ästhetik. Dabei orientiert sich die Bohlenbauweise an der traditionellen Blockhütte. Die Wände setzen sich aus vorgefertigten Holzbohlen zusammen, die dank einer Nut- und Feder-Verbindung ohne größere Anstrengungen aufeinander gesteckt werden können. Damit ist ein einfacher und schneller Auf- und Abbau garantiert. An der Kopfseite des Gartenhauses sorgt die charakteristische Verkämmung (spezielle Einkerbungen im Holz) nicht nur für eine schöne Optik, sondern hält das ganze Konstrukt auch zusammen und macht es absolut wind- und wetterfest.
Mit einer Wandstärke von 34 mm ist das robuste Gartenhaus der perfekte Aufenthaltsort im Sommer. Aufgrund wärmedämmender Eigenschaften des hochwertigen Holzes ist es im Inneren des Gartenhauses während der prallen Sommerhitze 3–5 Grad kühler, in den kälteren Abendstunden 3–5 Grad wärmer als draußen. So hast du im heißen Sommer immer ein schattiges Plätzchen. Dank der soliden Wandstärke verwittert das Holz nicht so schnell und bleibt langlebig und stabil.
Das hochwertig gearbeitete Gartenhaus zeichnet sich durch sein ausgesuchtes, erstklassiges Fichtenholz aus. Fichte ist besonders langlebig und robust, was für die notwendige Stabilität sorgt. Außerdem überzeugt die Holzart mit geringem Gewicht, einer leichten Verarbeitung und hoher Elastizität.
Das naturbelassene Holz sorgt für ein natürliches und zeitloses Aussehen. Außerdem ermöglicht dir das unbehandelte Holz, das Äußere des Gartenhauses ganz nach deinen eigenen Wünschen zu gestalten.
Bitte beachte, dass das Gartenhaus spätestens direkt nach der Montage von innen und außen mit einem Holzschutzmittel zu bearbeiten ist. Bei der Auswahl von Holzschutzmitteln empfehlen wir, dich im Fachhandel beraten zu lassen oder der Empfehlung des Herstellers zu folgen, die du in der beiliegenden Montageanleitung findest. Nach dem Erstanstrich sollte die Behandlung mindestens alle zwei Jahre wiederholt werden, um das Holz dauerhaft vor Verformung, Verwitterung und Schädlingsbefall zu schützen.
Das estnische Unternehmen ist darauf spezialisiert, hochwertigste Holz Gartenhäuser und Überdachungen in verschiedenen Formen und Größen herzustellen. Stabile Hölzer und passgenaue Fertigung tragen dazu bei, ein langlebiges Produkt zu erhalten, das sehr gut den Witterungseinflüssen trotzt. Lasita – High Quality aus Estland